Teknolojik alt yapısı ile kongre ve seminerler için mükemmel çözümler sunan, aynı zamanda ses yalıtımlı bölünebilir sütunsuz salonlarımız, uluslararası ürün sunumları ve organizasyonlar için gerekli zemini hazırlayan toplantı odalarımız da dahildir. Son teknolojiye sahip görsel ve işitsel teknik donanımlarımız ve gerektiğinde ilave teknik destek sağlayacak uzman kadromuz, etkinliklerinizin unutulmaz olmasını sağlamak için hizmetinizdedir.

Salon Kapasiteleri

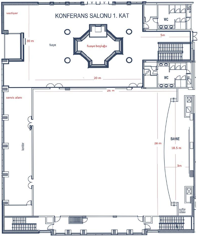
Kongre, balo ve bölünebilir toplantı salonlarımız için oturum senaryolarını tek alanda inceleyebilir; kroki, teknik altyapı ve kullanım tiplerini salon bazında değerlendirebilirsiniz.

Av. Özdemir Özok Kongre Merkezi

Büyük ölçekli kongreler, sempozyumlar, lansmanlar ve çok katılımcılı kurumsal etkinlikler için tasarlanan ana salonumuz; geniş fuaye alanı, sahne altyapısı ve teknik donanımıyla çok yönlü kullanım sunar.


1100 kişilik toplantılar için özel olarak yerleştirilen sistem, salonlar bölündüğünde de aynı şekilde eksiksiz hizmet vermektedir.

Salon Alanı 676 m2
Fuaye Alanı 400 m2
LED Ekran 60 m2
U masa için geçici ikon

U Masa

120 kişi

Tiyatro düzeni için geçici ikon

Tiyatro

1100 kişi

Sınıf düzeni için geçici ikon

Sınıf

600 kişi

Kabare düzeni için geçici ikon

Kabare

350 kişi

Kare masa düzeni için geçici ikon

Kare Masa

160 kişi

Ziyafet düzeni için geçici ikon

Ziyafet

700 kişi

Delege Mikrofonu Ses Sistemleri 1000 Mbps İnternet Simultane Odalar Telsiz ve Yaka Mikrofonları Dijital Göstergeli Kürsü Dijital Salon Giriş Panoları

Balo Salonu

Yemekli davetler, ödül törenleri, protokol buluşmaları ve marka lansmanları için tasarlanan balo salonu; sahneye odaklı akış, karşılama alanı ve servis koordinasyonu ile prestijli etkinlikler için güçlü bir atmosfer sunar.

Salon Alanı 598 m2
Fuaye Alanı 300 m2
U masa için geçici ikon

U Masa

80 kişi

Tiyatro düzeni için geçici ikon

Tiyatro

400 kişi

Sınıf düzeni için geçici ikon

Sınıf

250 kişi

Kabare düzeni için geçici ikon

Kabare

200 kişi

Kare masa düzeni için geçici ikon

Kare Masa

110 kişi

Ziyafet düzeni için geçici ikon

Ziyafet

450 kişi

Delege Mikrofonu Ses Sistemleri 1000 Mbps İnternet Simultane Odalar Telsiz ve Yaka Mikrofonları

D Blok 1

Kurumsal eğitimler, yönetim sunumları, workshop serileri ve paralel oturumlar için ideal olan D Blok 1; esnek mobilya yerleşimi ve odaklı sunum altyapısıyla orta ölçekli toplantılara güçlü bir zemin hazırlar.

Salon Alanı 240 m2
Fuaye Alanı 70 m2
U masa için geçici ikon

U Masa

60 kişi

Tiyatro düzeni için geçici ikon

Tiyatro

250 kişi

Sınıf düzeni için geçici ikon

Sınıf

170 kişi

Kabare düzeni için geçici ikon

Kabare

100 kişi

Kare masa düzeni için geçici ikon

Kare Masa

80 kişi

Ziyafet düzeni için geçici ikon

Ziyafet

160 kişi

Yüksek Çözünürlük Barkovizyon Perde 1000 Mbps İnternet Delege Mikrofonu Ses Sistemleri Flipchart Telsiz, Yaka Mikrofonları Dijital Göstergeli Kürsü Dijital Salon Giriş Panoları

D Blok 2

Mülakatlar, komisyon toplantıları, VIP görüşmeler ve küçük çaplı seminerler için tasarlanan D Blok 2; daha sakin, kontrollü ve mahremiyet odaklı bir toplantı deneyimi sunar.

Salon Alanı 160 m2
Fuaye Alanı 70 m2
U masa için geçici ikon

U Masa

40 kişi

Tiyatro düzeni için geçici ikon

Tiyatro

120 kişi

Sınıf düzeni için geçici ikon

Sınıf

100 kişi

Kabare düzeni için geçici ikon

Kabare

60 kişi

Kare masa düzeni için geçici ikon

Kare Masa

60 kişi

Ziyafet düzeni için geçici ikon

Ziyafet

100 kişi

Yüksek Çözünürlük Barkovizyon Perde 1000 Mbps İnternet Delege Mikrofonu Ses Sistemleri Flipchart Telsiz, Yaka Mikrofonları Dijital Göstergeli Kürsü Dijital Salon Giriş Panoları

Rezervasyon

Detaylı bilgi ve rezervasyon talepleriniz için 0 (312) 287 87 90 numarasından bizimle bağlantı kurabilirsiniz.